Edit Template

SHOJI ABODE

Pune

2023

Lead Architects: Harsh Soneji, Pratha Bhagat,

Photo Credits: Kshan Collective

Location: Pune

Gross Built Area (m2/ ft2): 2200 ft2

Firm Location: Mumbai, India Complet

Completed: 2023

A shoji (障しょう子じ, Japanese pronunciation: [ɕo:(d)ʑi]) is a door, window or room divider used in traditional Japanese architecture, consisting of translucent (or transparent) sheets on a lattice frame.

Originally, they were for separating room from room, or interior from exterior, but their distinctive ability to "allow light to pass" by utilizing washi paper panels enriched Japanese domestic culture and became an indispensable part of home life.

Living room is a gorgeous double heighted space that has a marble floor. White marble inlay has been peppered below the seating area. American Ashwood furniture has been custom designed for the house keeping in mind the Zen nature of the space. Lime wash walls add a cozy texture to the space. The bamboo tree near the staircase charms you as soon as you enter the home.

The clients love hosting their friends and family over for a game night or a soiree, the dining area becomes a cozy nook for a sit out and a fun evening with the dear ones.

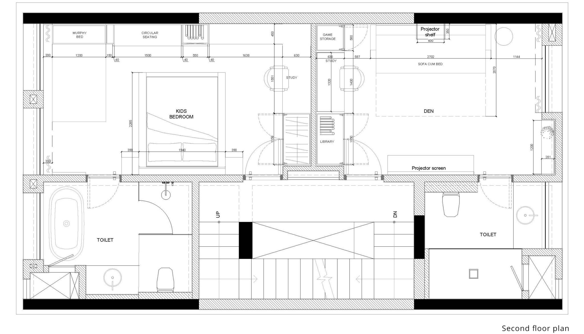
The kids room is a beautiful pop of color and has a lot of playful design elements. The tropical amazon wall paper that is paired with blush color that compliments the daughter’s personality and her liking.

The design focus was to bring balance, tranquility, harmony to the home while adapting a simple and minimalistic approach. The house is a minimalist abode invoking the feeling of calm as you move across the space.

Along the beautiful American Ashwood lattice frames this adds a design quotient in the space along with an element of utility. The linen fabrics in curtains and furniture add a rich and interesting texture to the space

The Den room has a darker feel as compared to the rest of the house. It is a multipurpose room, with a study and a Projector screen and a sofa cum bed making the room warm and cozy.

Originally, they were for separating room from room, or interior from exterior, but their distinctive ability to "allow light to pass" by utilizing washi paper panels enriched Japanese domestic culture and became an indispensable part of home life.

The house is nestled in the outskirts of Mumbai closer to the city of Pune, this row house is a part of a gated community. The client’s brief was very clear – to create a home away from the city that is calm, soothing and clutter free. such that it is minimal in nature, highlights the existing heights of the spaces.

Project Name

Shoji Adobe

Year

2023

Type

Residential

Status

Competition

Gross Built Area (m2/ ft2)

2200 ft2

Lead Architects

Harsh Soneji, Pratha Bhagat